搜房源
发布信息
服务热线:15601084512

客服微信>>

手机站 北京 天津 河北 辽宁 山东 其他站 发布信息

北京厂库房网> 北京厂房租售>北京周边厂房租售

华强天安·霸州智慧科技产业园整体出租出售

编号:151831

区域:

北京- 北京周边

类别:

厂房租售

占地面积:

18413平米

价格:

面议

建筑面积:

46690平米

车间面积:

办公面积:

柱网跨度:

8.4米

层高:

3.8-5米

现配电容量:

250KVA

分割面积:

地址:

霸州市中心路与京环线交叉口东南方向约500米

浏览:

王女士

详细信息

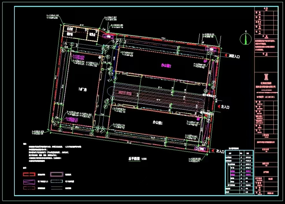
华强天安·霸州智慧科技产业园整体出租出售:


项目位于霸州智慧科技产业园,地理位置优越,交通便捷。距离雄安新区25公里,距离两高铁站3-10公里,建设中R1地铁直达北京。


周边环大广高速、京雄高速、京德高速、102国道等多条主干道路,多元化交通为企业发展助力。


项目产权独立,国有建设用地,属生产研发、总部办公、独栋厂房类型,可立项环评,消防等级根据需求报审。


总体占地面积18413平米,可使用建筑面积46690平米。其中地上建筑36690平米,地下10000平米。


独立三栋,框架结构浇筑厂房(毛坯)。单层使用面积2400平米,首层高5米,二层及以上高3.8米,配套电梯,地下一层相通。


独立4层建筑两栋,首层承重0.5吨/平米,其他楼层0.2吨/平米。独立6层建筑一栋,首层承重0.8吨/平米,其他楼层0.2吨/平米。长边柱间距8.4米,短边8米。


水电等基础配套设施完善,配电250KWA(可增容),天然气已接入,可自建燃气锅炉房。


适合业态:学校、医院、航空航天、电子信息、仪器仪表、智能制造、检测检验等多行业。


项目整体出租出售,价格面议,欢迎需求客户来电联系,实地考察,洽谈合作


图片展示

品牌企业

 地坪类别:环氧自流评.工业地坪,水泥自流评 地下车库地坪.防静电自流评.运动球场聚氨酯砂浆自流评.PVC地板

地坪类别:环氧自流评.工业地坪,水泥自流评 地下车库地坪.防静电自流评.运动球场聚氨酯砂浆自流评.PVC地板

大兴区魏善庄厂库房园区招租(高台库,整租分租均可)

大兴区魏善庄厂库房园区招租(高台库,整租分租均可)

联东U谷-京津冀 厂房、库房、办公-可环评办照出租出售

联东U谷-京津冀 厂房、库房、办公-可环评办照出租出售

荣盛产业新城

荣盛产业新城

“和谷”系列产业园介绍

“和谷”系列产业园介绍

闽京蒲企业园厂房 办公研发楼出租

闽京蒲企业园厂房 办公研发楼出租

昌平沙河厂库房 、办公综合楼出租(可定制分租,面积不限)

昌平沙河厂库房 、办公综合楼出租(可定制分租,面积不限)

相关站点

北京周边厂房出租

北京周边工厂出租

北京周边厂库房出租

北京周边库房出租

北京周边仓库出租

北京周边冷库出租

北京周边保鲜库出租

北京周边恒温库出租

北京周边高台库出租

北京周边平库出租

北京周边综合楼出租

北京周边土地出租

北京周边场地出租

北京周边建设用地出租

北京周边工业用地出租

关于本站- 广告投放- 联系我们- 版权隐私- 免责申明- 意见反馈 返回顶部

版权所有:北京万汇优企科技有限公司 未经授权禁止转载、摘编、复制或建立镜像,如有违反,追究法律责任.

电话:010-56877550

京ICP备14014070号-6