搜房源
发布信息
服务热线:15601084512

客服微信>>

手机站 北京 天津 河北 辽宁 山东 其他站 发布信息

北京厂库房网> 北京厂房出租>大兴厂房出租

十万级超净间实验室兼办公区出租

编号:151065

区域:

北京- 大兴

类别:

厂房出租

占地面积:

平米

价格:

面议

建筑面积:

车间面积:

185平米

办公面积:

227平米

柱网跨度:

层高:

现配电容量:

分割面积:

地址:

北京市大兴工业开发区前高米店盛坊路京仪仪表基地

浏览:

许先生

详细信息

位置在高米店-京开的东侧 仪器仪表基地园区内。目前,公司拥有十万级超净间实验室,此前用于干泵研发,现因研发项目暂停对外出租。具体出租场地情况如下:

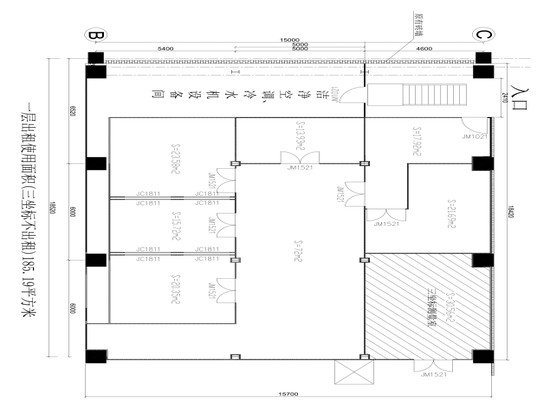
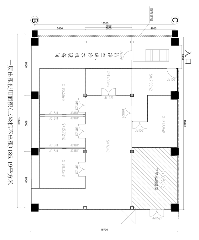
一层:出租使用面积(十万级超净间)达 185.19 平方米,高标准的洁净环境,适用于对环境洁净度有严苛要求的生产或研发活动。

二层:出租使用面积为 227.65 平方米,内部设有会议室,方便进行商务洽谈与团队交流;办公区可容纳6个办公位规划合理,可满足日常办公需求;另有 4 间独立办公室,为不同业务或团队提供相对独立的工作空间。同时配备升降梯,极大地提升了货物运输与人员通行的便利性。

该场地不仅具备优越的硬件设施,还依托公司国企的深厚背景,对于从事相关行业或对场地环境有特定要求的企业而言,是不可多得的优质选择。无论是继续开展对洁净度有要求的研发工作,还是进行精密产品的生产制造,或是办公使用,都能在此找到理想的空间。


图片展示

品牌企业

 地坪类别:环氧自流评.工业地坪,水泥自流评 地下车库地坪.防静电自流评.运动球场聚氨酯砂浆自流评.PVC地板

地坪类别:环氧自流评.工业地坪,水泥自流评 地下车库地坪.防静电自流评.运动球场聚氨酯砂浆自流评.PVC地板

大兴区魏善庄厂库房园区招租(高台库,整租分租均可)

大兴区魏善庄厂库房园区招租(高台库,整租分租均可)

联东U谷-京津冀 厂房、库房、办公-可环评办照出租出售

联东U谷-京津冀 厂房、库房、办公-可环评办照出租出售

荣盛产业新城

荣盛产业新城

“和谷”系列产业园介绍

“和谷”系列产业园介绍

闽京蒲企业园厂房 办公研发楼出租

闽京蒲企业园厂房 办公研发楼出租

昌平沙河厂库房 、办公综合楼出租(可定制分租,面积不限)

昌平沙河厂库房 、办公综合楼出租(可定制分租,面积不限)

相关站点

大兴厂房出租

大兴工厂出租

大兴厂库房出租

大兴库房出租

大兴仓库出租

大兴冷库出租

大兴保鲜库出租

大兴恒温库出租

大兴高台库出租

大兴平库出租

大兴综合楼出租

大兴土地出租

大兴场地出租

大兴建设用地出租

大兴工业用地出租

关于本站- 广告投放- 联系我们- 版权隐私- 免责申明- 意见反馈 返回顶部

版权所有:北京万汇优企科技有限公司 未经授权禁止转载、摘编、复制或建立镜像,如有违反,追究法律责任.

电话:010-56877550

京ICP备14014070号-6