搜房源
发布信息
服务热线:15601084512

客服微信>>

手机站 北京 天津 河北 辽宁 山东 其他站 发布信息

北京厂库房网> 北京库房出租>房山库房出租

房山区良乡镇标准高台库、冷库、保鲜库出租

编号:147476

区域:

北京- 房山

类别:

库房出租

占地面积:

平米

价格:

面议

建筑面积:

库房面积:

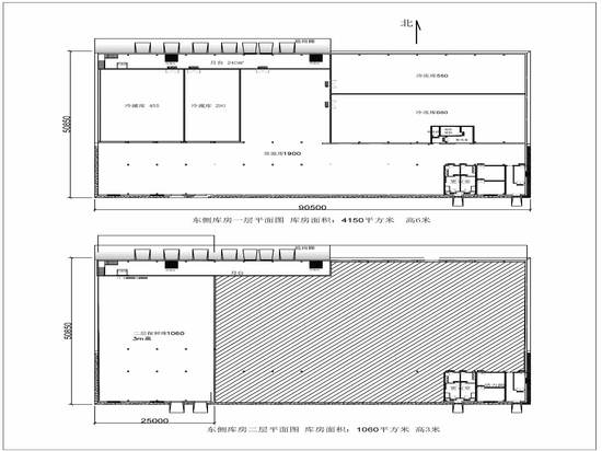
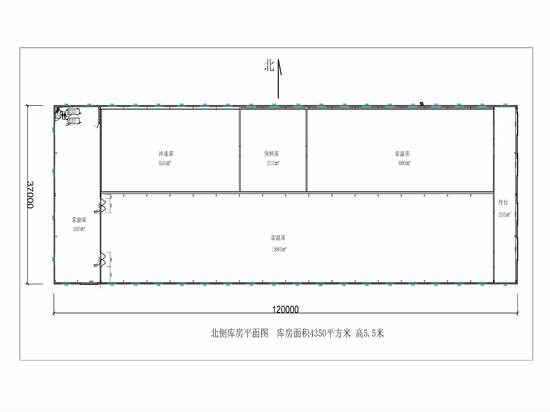
10000平米

办公面积:

柱网跨度:

层高:

5.5米

现配电容量:

分割面积:

50㎡ 100㎡ 400㎡ 700㎡

地址:

房山区良乡镇江村村东南-2号北京昊屹畜牧有限公司院内

浏览:

冯先生

详细信息

北京市房山区良乡冷库/干仓/保鲜库出租:

【房源概况】

本址位于北京市房山区江村村东南-2号北京昊屹畜牧有限公司院内(230国道旁),环境优美,手续正规,稳定放心使用。冷库/干仓/保鲜库出租——共计10000平。可租面积50平米-700平米大小均有可拆分。

带装卸平台,层高空间充足,各类常规仓储行业均可适用。水电齐全,配有独立办公区。


【位置交通】

地理位置优越,交通便利,进出车辆方便。紧邻230国道与107国道交叉口,周边环京雄高速、京港澳高速、南六环等多条主干道路,四通八达,多元化交通为企业发展助力。


【租赁方式】

租赁方式灵活,可整租/可分租/可临时储存(长期租价格可优惠)-可托管可自管。具体租金优惠面议,欢迎有需求客户来电联系,洽谈合作!


图片展示

品牌企业

 地坪类别:环氧自流评.工业地坪,水泥自流评 地下车库地坪.防静电自流评.运动球场聚氨酯砂浆自流评.PVC地板

地坪类别:环氧自流评.工业地坪,水泥自流评 地下车库地坪.防静电自流评.运动球场聚氨酯砂浆自流评.PVC地板

大兴区魏善庄厂库房园区招租(高台库,整租分租均可)

大兴区魏善庄厂库房园区招租(高台库,整租分租均可)

联东U谷-京津冀 厂房、库房、办公-可环评办照出租出售

联东U谷-京津冀 厂房、库房、办公-可环评办照出租出售

荣盛产业新城

荣盛产业新城

“和谷”系列产业园介绍

“和谷”系列产业园介绍

闽京蒲企业园厂房 办公研发楼出租

闽京蒲企业园厂房 办公研发楼出租

昌平沙河厂库房 、办公综合楼出租(可定制分租,面积不限)

昌平沙河厂库房 、办公综合楼出租(可定制分租,面积不限)

相关站点

房山厂房出租

房山工厂出租

房山厂库房出租

房山库房出租

房山仓库出租

房山冷库出租

房山保鲜库出租

房山恒温库出租

房山高台库出租

房山平库出租

房山综合楼出租

房山土地出租

房山场地出租

房山建设用地出租

房山工业用地出租

关于本站- 广告投放- 联系我们- 版权隐私- 免责申明- 意见反馈 返回顶部

版权所有:北京万汇优企科技有限公司 未经授权禁止转载、摘编、复制或建立镜像,如有违反,追究法律责任.

电话:010-56877550

京ICP备14014070号-6