搜房源
发布信息
服务热线:15601084512

客服微信>>

手机站 北京 天津 河北 辽宁 山东 其他站 发布信息

北京厂库房网> 北京厂房出售>大兴厂房出售

中国中化闲置房产拟出售招商公告

编号:147444

区域:

北京- 大兴

类别:

厂房出售

占地面积:

7359.8平米

价格:

面议

建筑面积:

12607.18平米

车间面积:

1600平米

办公面积:

6301.26平米

柱网跨度:

层高:

现配电容量:

分割面积:

地址:

大兴区安定北街64号院

浏览:

安淞

详细信息

一、标的情况

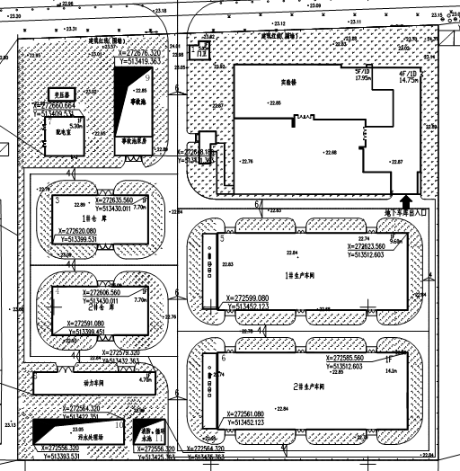
本次拟出售转让标的资产为中化化工科学技术研究总院有限公司北京大兴分院项目工业用地使用权及地上建筑物项目位于北京市大兴区安定镇安定北街精细化工产业基地内。东侧为北京同兴机械有限公司,西侧为北京广源益农化学有限责任公司,南侧为北京钰林化工有限公司,北侧为安定北街。项目毗邻京台高速及北京大兴机场,交通便利(从厂区到京台高速庞安路出口直线距离约3.7公里,距离北京市新机场直线距离约15.7公里);东临万亩古桑园,环境优美;西邻大兴区安定镇政府,生活配套齐全。用地面积为18233.27平方米,房屋建筑面积为12607.18平方米。

预估价格:5000万元

预估挂牌时间:2024年12月

标的具体情况如下:

序号

坐落

不动产单元号

权利类型

权利性质

用途

面积

使用期限

 

1

大兴区安定北街64号院7号1层101

110115105001GB00243F00070001

国有建设用地

使用权/房屋

所有权

出让

生产车间

1485.65平方米

2060年03月03日止

 

2

大兴区安定北街64号院8号1层101

110115105001GB00243F00080001

国有建设用地

使用权/房屋

所有权

出让

生产车间

1485.65平方米

2060年03月03日止

 

3

大兴区安定北街64号院5号1层101

110115105001GB00243F00050001

国有建设用地

使用权/房屋

所有权

出让

仓库

473.67平方米

2060年03月03日止

 

4

大兴区安定北街64号院6号1层101

110115105001GB00243F00060001

国有建设用地

使用权/房屋

所有权

出让

动力车间

282.75平方米

2060年03月03日止

 

5

大兴区安定北街64号院2号1层101

110115105001GB00243F00020001

国有建设用地

使用权/房屋

所有权

出让

门卫

25.4平方米

2060年03月03日止

 

6

大兴区安定北街64号院1号楼-1至1层-101

110115105001GB00243F00010001

国有建设用地

使用权/房屋

所有权

出让

央产人防

1927.23平方米

2060年03月03日止

 

7

大兴区安定北街64号院1号楼-1至5层101

110115105001GB00243F00010002

国有建设用地

使用权/房屋

所有权

出让

实验楼

6301.26平方米

2060年03月03日止

8

大兴区安定北街64号院3号1层101

110115105001GB00243F00030001

国有建设用地

使用权/房屋

所有权

出让

配电室

151.9平方米

2060年03月03日止

9

大兴区安定北街64号院4号1层101

110115105001GB00243F00040001

国有建设用地

使用权/房屋

所有权

出让

仓库

473.67平方米

2060年03月03日止

、权属情况

标的资产权属清晰,证件齐全,无任何抵押质押,无任何法律纠纷等情况。


预报名方式

1)预报名时间:2024年9月5日至2024年10月8日。

2)预报名联系人及电话:李经理18911318961、安经理13522426460。

联系地址:北京市丰台区丽泽路平安幸福中心B座25层。

3)预报名方式:投资人应于2024年10月8日17:30前将报名材料发送至联系人邮箱(ansong@sinochem.com)

a)营业执照原件扫描件并加盖公章;

b)法定代表人授权委托书扫描件并加盖公章(格式自拟);

c)公司概况及拟受让初步预估价格。

自然人需提供个人身份证扫描件及拟受让初步预估价格;

注:请严格按照报名要求提供相应材料,邮件名称请备注“公司名称(如为企业竞标人)+联系人+联系电话”。

四、踏勘

1)踏勘时间:具体时间待报名截止后电话通知,各报名单位按照电话通知约定的时间,在工作人员带领下踏勘现场。

2)踏勘地点:北京市大兴区安定镇安定北街精细化工产业基地。

3)踏勘要求:个人竞标人需提供个人身份证(原件及复印件);企业竞标人需提供企业营业执照(加盖公章的复印件)、授权委托书、法定代表人身份证(复印件)、授权委托人身份证(原件及复印件)、信用证明材料(对列入失信被执行人、重大税收违法案件当事人名单、政府采购严重违法失信行为记录名单的公司,拒绝参与本项目。查询渠道:“信用中国”网站(http://zxgk.court.gov.cn/shixin/)、中国政府采购网(http://www.ccgp.gov.cn/search/cr/),应提供加盖企业公章的相关网页查询截图复印件)。以上材料的原件审核过后当场退还,复印件收存。

4)其他要求:严格遵守厂区内规章制度,严格服从厂区HSE管理。


图片展示

品牌企业

 地坪类别:环氧自流评.工业地坪,水泥自流评 地下车库地坪.防静电自流评.运动球场聚氨酯砂浆自流评.PVC地板

地坪类别:环氧自流评.工业地坪,水泥自流评 地下车库地坪.防静电自流评.运动球场聚氨酯砂浆自流评.PVC地板

大兴区魏善庄厂库房园区招租(高台库,整租分租均可)

大兴区魏善庄厂库房园区招租(高台库,整租分租均可)

联东U谷-京津冀 厂房、库房、办公-可环评办照出租出售

联东U谷-京津冀 厂房、库房、办公-可环评办照出租出售

荣盛产业新城

荣盛产业新城

“和谷”系列产业园介绍

“和谷”系列产业园介绍

闽京蒲企业园厂房 办公研发楼出租

闽京蒲企业园厂房 办公研发楼出租

昌平沙河厂库房 、办公综合楼出租(可定制分租,面积不限)

昌平沙河厂库房 、办公综合楼出租(可定制分租,面积不限)

相关站点

大兴厂房出租

大兴工厂出租

大兴厂库房出租

大兴库房出租

大兴仓库出租

大兴冷库出租

大兴保鲜库出租

大兴恒温库出租

大兴高台库出租

大兴平库出租

大兴综合楼出租

大兴土地出租

大兴场地出租

大兴建设用地出租

大兴工业用地出租

关于本站- 广告投放- 联系我们- 版权隐私- 免责申明- 意见反馈 返回顶部

版权所有:北京万汇优企科技有限公司 未经授权禁止转载、摘编、复制或建立镜像,如有违反,追究法律责任.

电话:010-56877550

京ICP备14014070号-6