搜房源
发布信息
服务热线:15601084512

客服微信>>

手机站 北京 天津 河北 辽宁 山东 其他站 发布信息

北京厂库房网> 北京厂房>大兴厂房

{诚意出租,可转可租} 万级洁净车间

编号:140039

区域:

北京- 大兴

类别:

厂房

占地面积:

840平米

价格:

面议

建筑面积:

车间面积:

840平米

办公面积:

柱网跨度:

层高:

现配电容量:

分割面积:

地址:

大兴区中关村科技园区大兴生物医药产业基地春林大街16号

浏览:

李峰

详细信息

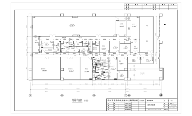
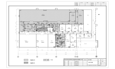
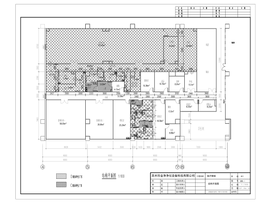
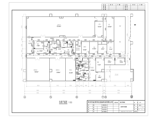
{诚意出租,可转可租} 现有万级洁净车间,位于大兴区中关村科技园区大兴生物医药产业基地春林大街16号,占地面积约840平方米,可满足生产研发医疗器械等有洁净生产需求的企业或其他企业需求,附图为车间平面图、洁净级别图以及洁净车间图。

如有意向或疑问请致电:李峰,15210313009

 

                                          




图片展示

品牌企业

 地坪类别:环氧自流评.工业地坪,水泥自流评 地下车库地坪.防静电自流评.运动球场聚氨酯砂浆自流评.PVC地板

地坪类别:环氧自流评.工业地坪,水泥自流评 地下车库地坪.防静电自流评.运动球场聚氨酯砂浆自流评.PVC地板

大兴区魏善庄厂库房园区招租(高台库,整租分租均可)

大兴区魏善庄厂库房园区招租(高台库,整租分租均可)

联东U谷-京津冀 厂房、库房、办公-可环评办照出租出售

联东U谷-京津冀 厂房、库房、办公-可环评办照出租出售

荣盛产业新城

荣盛产业新城

“和谷”系列产业园介绍

“和谷”系列产业园介绍

闽京蒲企业园厂房 办公研发楼出租

闽京蒲企业园厂房 办公研发楼出租

昌平沙河厂库房 、办公综合楼出租(可定制分租,面积不限)

昌平沙河厂库房 、办公综合楼出租(可定制分租,面积不限)

相关站点

大兴厂房出租

大兴工厂出租

大兴厂库房出租

大兴库房出租

大兴仓库出租

大兴冷库出租

大兴保鲜库出租

大兴恒温库出租

大兴高台库出租

大兴平库出租

大兴综合楼出租

大兴土地出租

大兴场地出租

大兴建设用地出租

大兴工业用地出租

关于本站- 广告投放- 联系我们- 版权隐私- 免责申明- 意见反馈 返回顶部

版权所有:北京万汇优企科技有限公司 未经授权禁止转载、摘编、复制或建立镜像,如有违反,追究法律责任.

电话:010-56877550

京ICP备14014070号-6