搜房源
发布信息
服务热线:15601084512

客服微信>>

手机站 北京 天津 河北 辽宁 山东 其他站 发布信息

北京厂库房网> 北京商铺综合楼出租>海淀商铺综合楼出租

海淀中关村商业楼招商

编号:137771

区域:

北京- 海淀

类别:

商铺综合楼出租

占地面积:

0平米

价格:

面议

房屋面积:

364平米

层高:

4.2米

分割面积:

地址:

海淀中关村

浏览:

马总

详细信息

具体位置海淀区中关村有商业楼出租

(一)世纪科贸大厦C座二层商业7

世纪科贸大厦位于中关村东区核心地带,保福寺桥南侧,周边商业氛围浓厚本次招租商业为临街二层商业


租金:8元/㎡/天面积:292.72平米燃气接入:有现状:空置

现装修风格:火锅店


(二)  海淀-中关村 世纪科贸大厦C座

房东直租---临主路繁华地段写字楼配套(大展示面)楼层: 三楼!

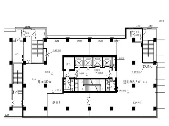
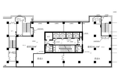
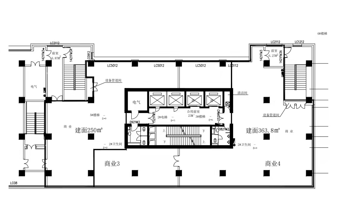
面积:363.8平米

租金报价:8元(可谈)年限:合同可签5年,层高:4.2米使用率:78%

性质:纯商业产权,可注册!随时看房。超大广告位展示面!适合各类型办公业态,教育培训,目前教育遗留装修,现业态不限!

交通:地铁10号线知春里地铁站900米

地铁13号线五道口地铁站1.2公里

门口多辆公交,停车位充足,地上地下均可!


世纪科贸大厦C座

北京市海淀区中关村东路66号院-2


图片展示

品牌企业

 地坪类别:环氧自流评.工业地坪,水泥自流评 地下车库地坪.防静电自流评.运动球场聚氨酯砂浆自流评.PVC地板

地坪类别:环氧自流评.工业地坪,水泥自流评 地下车库地坪.防静电自流评.运动球场聚氨酯砂浆自流评.PVC地板

大兴区魏善庄厂库房园区招租(高台库,整租分租均可)

大兴区魏善庄厂库房园区招租(高台库,整租分租均可)

联东U谷-京津冀 厂房、库房、办公-可环评办照出租出售

联东U谷-京津冀 厂房、库房、办公-可环评办照出租出售

荣盛产业新城

荣盛产业新城

“和谷”系列产业园介绍

“和谷”系列产业园介绍

闽京蒲企业园厂房 办公研发楼出租

闽京蒲企业园厂房 办公研发楼出租

昌平沙河厂库房 、办公综合楼出租(可定制分租,面积不限)

昌平沙河厂库房 、办公综合楼出租(可定制分租,面积不限)

相关站点

海淀厂房出租

海淀工厂出租

海淀厂库房出租

海淀库房出租

海淀仓库出租

海淀冷库出租

海淀保鲜库出租

海淀恒温库出租

海淀高台库出租

海淀平库出租

海淀综合楼出租

海淀土地出租

海淀场地出租

海淀建设用地出租

海淀工业用地出租

关于本站- 广告投放- 联系我们- 版权隐私- 免责申明- 意见反馈 返回顶部

版权所有:北京万汇优企科技有限公司 未经授权禁止转载、摘编、复制或建立镜像,如有违反,追究法律责任.

电话:010-56877550

京ICP备14014070号-6