搜房源
发布信息
服务热线:15601084512

客服微信>>

手机站 北京 天津 河北 辽宁 山东 其他站 发布信息

北京厂库房网> 北京产业园出租>顺义产业园出租

产业园出租

编号:134764

区域:

北京- 顺义

类别:

产业园出租

占地面积:

48000平米

价格:

面议

房屋面积:

层高:

分割面积:

地址:

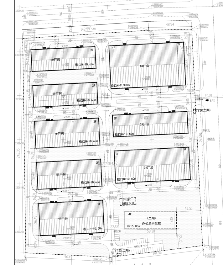
华尚产业园位于项目位于顺义区昌金 路与腾仁路交汇处

浏览:

王女士

详细信息

区位:华尚产业园位于项目位于顺义区昌金

路与腾仁路交汇处,东距京顺路(G101)

300米,南距首都机场15.3公里,距北六环8.5公里。

项目:用地内共有8栋厂房和1栋研发楼,总占地面

积48734 平米,建筑总面积37273平米(仅含厂房和研发办公楼)。

优势:紧邻昌金路主路交通便利,归属牛栏山镇产业圈。

厂房:室内层高均具备双层设置标准,纯钢结构,每栋面积3500-4800平米不等。

办公研发楼:研发楼建筑面积约3756平米;地上四层目前闲置。

生活配套食堂、员工宿舍:其中食堂一处,可同时容纳40人用餐;

宿舍共71间,其中目前已出租17间,目前空置54间,室内有简单装修。

联系人:王女士  13501238879


图片展示

品牌企业

 地坪类别:环氧自流评.工业地坪,水泥自流评 地下车库地坪.防静电自流评.运动球场聚氨酯砂浆自流评.PVC地板

地坪类别:环氧自流评.工业地坪,水泥自流评 地下车库地坪.防静电自流评.运动球场聚氨酯砂浆自流评.PVC地板

大兴区魏善庄厂库房园区招租(高台库,整租分租均可)

大兴区魏善庄厂库房园区招租(高台库,整租分租均可)

联东U谷-京津冀 厂房、库房、办公-可环评办照出租出售

联东U谷-京津冀 厂房、库房、办公-可环评办照出租出售

荣盛产业新城

荣盛产业新城

“和谷”系列产业园介绍

“和谷”系列产业园介绍

闽京蒲企业园厂房 办公研发楼出租

闽京蒲企业园厂房 办公研发楼出租

昌平沙河厂库房 、办公综合楼出租(可定制分租,面积不限)

昌平沙河厂库房 、办公综合楼出租(可定制分租,面积不限)

相关站点

顺义厂房出租

顺义工厂出租

顺义厂库房出租

顺义库房出租

顺义仓库出租

顺义冷库出租

顺义保鲜库出租

顺义恒温库出租

顺义高台库出租

顺义平库出租

顺义综合楼出租

顺义土地出租

顺义场地出租

顺义建设用地出租

顺义工业用地出租

关于本站- 广告投放- 联系我们- 版权隐私- 免责申明- 意见反馈 返回顶部

版权所有:北京万汇优企科技有限公司 未经授权禁止转载、摘编、复制或建立镜像,如有违反,追究法律责任.

电话:010-56877550

京ICP备14014070号-6