搜房源
发布信息
服务热线:15601084512

客服微信>>

手机站 北京 天津 河北 辽宁 山东 其他站 发布信息

北京厂库房网> 北京厂房出售>北京周边厂房出售

涿州开发区河谷产业园出售厂房可按揭环评宽松企业聚集地

编号:131008

区域:

北京- 北京周边

类别:

厂房出售

占地面积:

2000平米

价格:

面议

建筑面积:

2000平米

车间面积:

2000平米

办公面积:

2000平米

柱网跨度:

8米

层高:

7.2米

现配电容量:

140KVA

分割面积:

地址:

涿州高新技术产业开发区

浏览:

高经理

详细信息

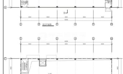
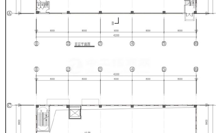
项目地在涞水开发区北区G5京昆高速涞水新城出口保野公路北行3公里 中国电料电子科技园往北

涞水•和谷智能科技产业园一期占地80亩,定位于智能制造、新能源新材料、电子信息、节能环保和生产性服务业等行业小微企业中试、研发、生产、办公总部基地。容积率低至1.4,绿化路高达19%,实现了建筑、景观、道理的完美结合。

涞水•和谷智能科技产业园厂房为框架独栋产品和轻钢产品,框架独栋面积900到3000平米不等,组团式设计,布局规整合理,满足企业形象需要。框架厂房为二层半结构,一层挑高7.8米,二层4.2米,三层3.9米,一层生产中试、二层研发组装原料半成品仓储,三层办公,满足企业基本生产需求。

顶层设计可上人屋面,电梯直达,3.9米高女儿墙,可做屋顶花园或员工休闲娱乐中心


图片展示

品牌企业

 地坪类别:环氧自流评.工业地坪,水泥自流评 地下车库地坪.防静电自流评.运动球场聚氨酯砂浆自流评.PVC地板

地坪类别:环氧自流评.工业地坪,水泥自流评 地下车库地坪.防静电自流评.运动球场聚氨酯砂浆自流评.PVC地板

大兴区魏善庄厂库房园区招租(高台库,整租分租均可)

大兴区魏善庄厂库房园区招租(高台库,整租分租均可)

联东U谷-京津冀 厂房、库房、办公-可环评办照出租出售

联东U谷-京津冀 厂房、库房、办公-可环评办照出租出售

荣盛产业新城

荣盛产业新城

“和谷”系列产业园介绍

“和谷”系列产业园介绍

闽京蒲企业园厂房 办公研发楼出租

闽京蒲企业园厂房 办公研发楼出租

昌平沙河厂库房 、办公综合楼出租(可定制分租,面积不限)

昌平沙河厂库房 、办公综合楼出租(可定制分租,面积不限)

相关站点

北京周边厂房出租

北京周边工厂出租

北京周边厂库房出租

北京周边库房出租

北京周边仓库出租

北京周边冷库出租

北京周边保鲜库出租

北京周边恒温库出租

北京周边高台库出租

北京周边平库出租

北京周边综合楼出租

北京周边土地出租

北京周边场地出租

北京周边建设用地出租

北京周边工业用地出租

关于本站- 广告投放- 联系我们- 版权隐私- 免责申明- 意见反馈 返回顶部

版权所有:北京万汇优企科技有限公司 未经授权禁止转载、摘编、复制或建立镜像,如有违反,追究法律责任.

电话:010-56877550

京ICP备14014070号-6