搜房源
发布信息
服务热线:15601084512

客服微信>>

手机站 北京 天津 河北 辽宁 山东 其他站 发布信息

北京厂库房网> 北京库房出租>顺义库房出租

顺义机场标准高台丙二类常温仓库,土地证、房产证、消防证齐全

编号:125336

区域:

北京- 顺义

类别:

库房出租

占地面积:

0平米

价格:

面议

建筑面积:

库房面积:

1500平米

办公面积:

柱网跨度:

层高:

10.0米

现配电容量:

分割面积:

地址:

机场北街10号院航港发展物流园

浏览:

孙先生

详细信息

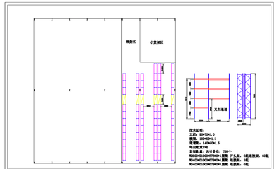
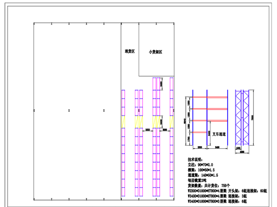
1、可用面积1500㎡,可搭建5层货架,高1.6米/层。
2、金刚砂硬化地坪,承重3吨/㎡。
3、内置码头两个,设备坡道门一个。
4、可提供委托仓储服务:仓储收发货,订单处理,分拣打包等操作服务。丰富成熟的干线运输及市内配送资源。物流园内自有丰富的仓储加工管理团队。为客户提供不同的仓储解决方案,为客户降低企业成本。
5、配套设施有:自主研发的WMS,CCTV监控设备,办公网络,叉车、液压车及可定制设备。
6、优越的地理位置:距离机场2.5公里,距离6环京平高速口1公里,机场二高速5公里。临街出入方便,场地大,20m挂车均可进出。

图片展示

品牌企业

 地坪类别:环氧自流评.工业地坪,水泥自流评 地下车库地坪.防静电自流评.运动球场聚氨酯砂浆自流评.PVC地板

地坪类别:环氧自流评.工业地坪,水泥自流评 地下车库地坪.防静电自流评.运动球场聚氨酯砂浆自流评.PVC地板

大兴区魏善庄厂库房园区招租(高台库,整租分租均可)

大兴区魏善庄厂库房园区招租(高台库,整租分租均可)

联东U谷-京津冀 厂房、库房、办公-可环评办照出租出售

联东U谷-京津冀 厂房、库房、办公-可环评办照出租出售

荣盛产业新城

荣盛产业新城

“和谷”系列产业园介绍

“和谷”系列产业园介绍

闽京蒲企业园厂房 办公研发楼出租

闽京蒲企业园厂房 办公研发楼出租

昌平沙河厂库房 、办公综合楼出租(可定制分租,面积不限)

昌平沙河厂库房 、办公综合楼出租(可定制分租,面积不限)

相关站点

顺义厂房出租

顺义工厂出租

顺义厂库房出租

顺义库房出租

顺义仓库出租

顺义冷库出租

顺义保鲜库出租

顺义恒温库出租

顺义高台库出租

顺义平库出租

顺义综合楼出租

顺义土地出租

顺义场地出租

顺义建设用地出租

顺义工业用地出租

关于本站- 广告投放- 联系我们- 版权隐私- 免责申明- 意见反馈 返回顶部

版权所有:北京万汇优企科技有限公司 未经授权禁止转载、摘编、复制或建立镜像,如有违反,追究法律责任.

电话:010-56877550

京ICP备14014070号-6