搜房源
发布信息
服务热线:15601084512

客服微信>>

手机站 北京 天津 河北 辽宁 山东 其他站 发布信息

北京厂库房网> 北京产业园出售>通州产业园出售

(出售)联东u谷 环科二号桥,户型多样,独立产权,可办环评

编号:120587

区域:

北京- 通州

类别:

产业园出售

占地面积:

400平米

价格:

2160.00万元

房屋面积:

1200平米

层高:

19.0米

分割面积:

地址:

马驹桥镇马驹桥2号桥向南200米

浏览:

花艳楠

详细信息

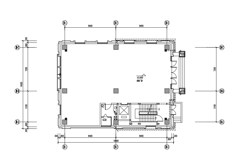
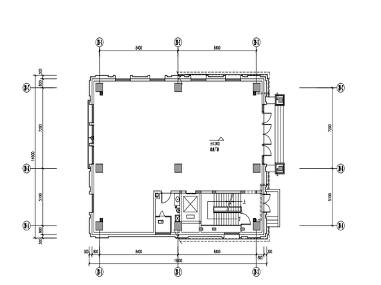
位置:通州马驹桥镇马驹桥2号桥向南200米路东,连接京津唐高速、城市六环路

体量:占地100亩左右,建筑面积约14万平米

户型:800-4000平米不等的独栋、双拼以及联排,总计4层,首层7.2米超高层高设计,预留企业更多扩容空间,可设计前台接待大厅、成果展示、制造、生产以及仓储功能,2F 4.5m  3F 4.1m 4F 3.9m  B1 3.6m

政策:享受中关村科技园优惠政策,税收减免、资金扶持、人才引进(国家专利独立认证)

产权:50年的独立工业产权

优势:集中供暖设计,为企业入住提供有力保障;双出入口设计,采用下沉式庭院设计,真正做到客货分流;园区即将纳入亦庄经济技术开发区,升值空间无限

企业类型;电子信息、新材料、生物医药、高端技术制造、节能环保

 

图片展示

品牌企业

 地坪类别:环氧自流评.工业地坪,水泥自流评 地下车库地坪.防静电自流评.运动球场聚氨酯砂浆自流评.PVC地板

地坪类别:环氧自流评.工业地坪,水泥自流评 地下车库地坪.防静电自流评.运动球场聚氨酯砂浆自流评.PVC地板

大兴区魏善庄厂库房园区招租(高台库,整租分租均可)

大兴区魏善庄厂库房园区招租(高台库,整租分租均可)

联东U谷-京津冀 厂房、库房、办公-可环评办照出租出售

联东U谷-京津冀 厂房、库房、办公-可环评办照出租出售

荣盛产业新城

荣盛产业新城

“和谷”系列产业园介绍

“和谷”系列产业园介绍

闽京蒲企业园厂房 办公研发楼出租

闽京蒲企业园厂房 办公研发楼出租

昌平沙河厂库房 、办公综合楼出租(可定制分租,面积不限)

昌平沙河厂库房 、办公综合楼出租(可定制分租,面积不限)

相关站点

通州厂房出租

通州工厂出租

通州厂库房出租

通州库房出租

通州仓库出租

通州冷库出租

通州保鲜库出租

通州恒温库出租

通州高台库出租

通州平库出租

通州综合楼出租

通州土地出租

通州场地出租

通州建设用地出租

通州工业用地出租

关于本站- 广告投放- 联系我们- 版权隐私- 免责申明- 意见反馈 返回顶部

版权所有:北京万汇优企科技有限公司 未经授权禁止转载、摘编、复制或建立镜像,如有违反,追究法律责任.

电话:010-56877550

京ICP备14014070号-6