搜房源
发布信息
服务热线:15601084512

客服微信>>

手机站 北京 天津 河北 辽宁 山东 其他站 发布信息

北京厂库房网> 北京厂房出售>通州厂房出售

马驹桥联东U谷厂房研发办公楼有产权可环评享受中关村政策

编号:119773

区域:

北京- 通州

类别:

厂房出售

占地面积:

0平米

价格:

面议

建筑面积:

40000平米

车间面积:

办公面积:

柱网跨度:

8米

层高:

现配电容量:

分割面积:

地址:

马驹桥2号桥向南200米

浏览:

联东集团—黄梦奇

详细信息

园区位于北京市通州区马驹桥2号桥向南200米位置

1.开发商直售

2园区需采用地下1层地上4层的设计,地下1层采用下沉式庭院设计,有门窗和车辆入库通道,方便货物进出

3.首层7.2米超高层高,可做展厅、前台接待、仓库等用图

4.产权:50年大产权,每户都有独立分割的产权,有房本,可办环评

5.面积800-4000平不等均有

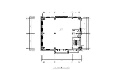
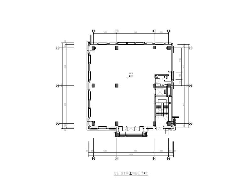
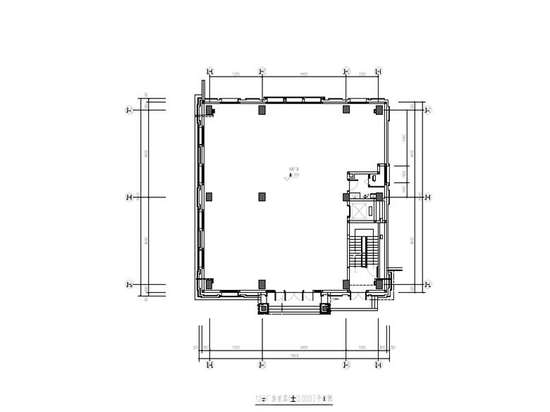
图片展示

品牌企业

 地坪类别:环氧自流评.工业地坪,水泥自流评 地下车库地坪.防静电自流评.运动球场聚氨酯砂浆自流评.PVC地板

地坪类别:环氧自流评.工业地坪,水泥自流评 地下车库地坪.防静电自流评.运动球场聚氨酯砂浆自流评.PVC地板

大兴区魏善庄厂库房园区招租(高台库,整租分租均可)

大兴区魏善庄厂库房园区招租(高台库,整租分租均可)

联东U谷-京津冀 厂房、库房、办公-可环评办照出租出售

联东U谷-京津冀 厂房、库房、办公-可环评办照出租出售

荣盛产业新城

荣盛产业新城

“和谷”系列产业园介绍

“和谷”系列产业园介绍

闽京蒲企业园厂房 办公研发楼出租

闽京蒲企业园厂房 办公研发楼出租

昌平沙河厂库房 、办公综合楼出租(可定制分租,面积不限)

昌平沙河厂库房 、办公综合楼出租(可定制分租,面积不限)

相关站点

通州厂房出租

通州工厂出租

通州厂库房出租

通州库房出租

通州仓库出租

通州冷库出租

通州保鲜库出租

通州恒温库出租

通州高台库出租

通州平库出租

通州综合楼出租

通州土地出租

通州场地出租

通州建设用地出租

通州工业用地出租

关于本站- 广告投放- 联系我们- 版权隐私- 免责申明- 意见反馈 返回顶部

版权所有:北京万汇优企科技有限公司 未经授权禁止转载、摘编、复制或建立镜像,如有违反,追究法律责任.

电话:010-56877550

京ICP备14014070号-6