搜房源
发布信息
服务热线:15601084512

客服微信>>

手机站 北京 天津 河北 辽宁 山东 其他站 发布信息

北京厂库房网> 北京厂房出租>大兴厂房出租

厂、库房出租、出售

编号:117862

区域:

北京- 大兴

类别:

厂房出租

占地面积:

13000平米

价格:

面议

建筑面积:

10000平米

车间面积:

10000平米

办公面积:

900平米

柱网跨度:

16米

层高:

3.5米

现配电容量:

250KVA

分割面积:

地址:

青云店镇工业区

浏览:

陈先生

详细信息

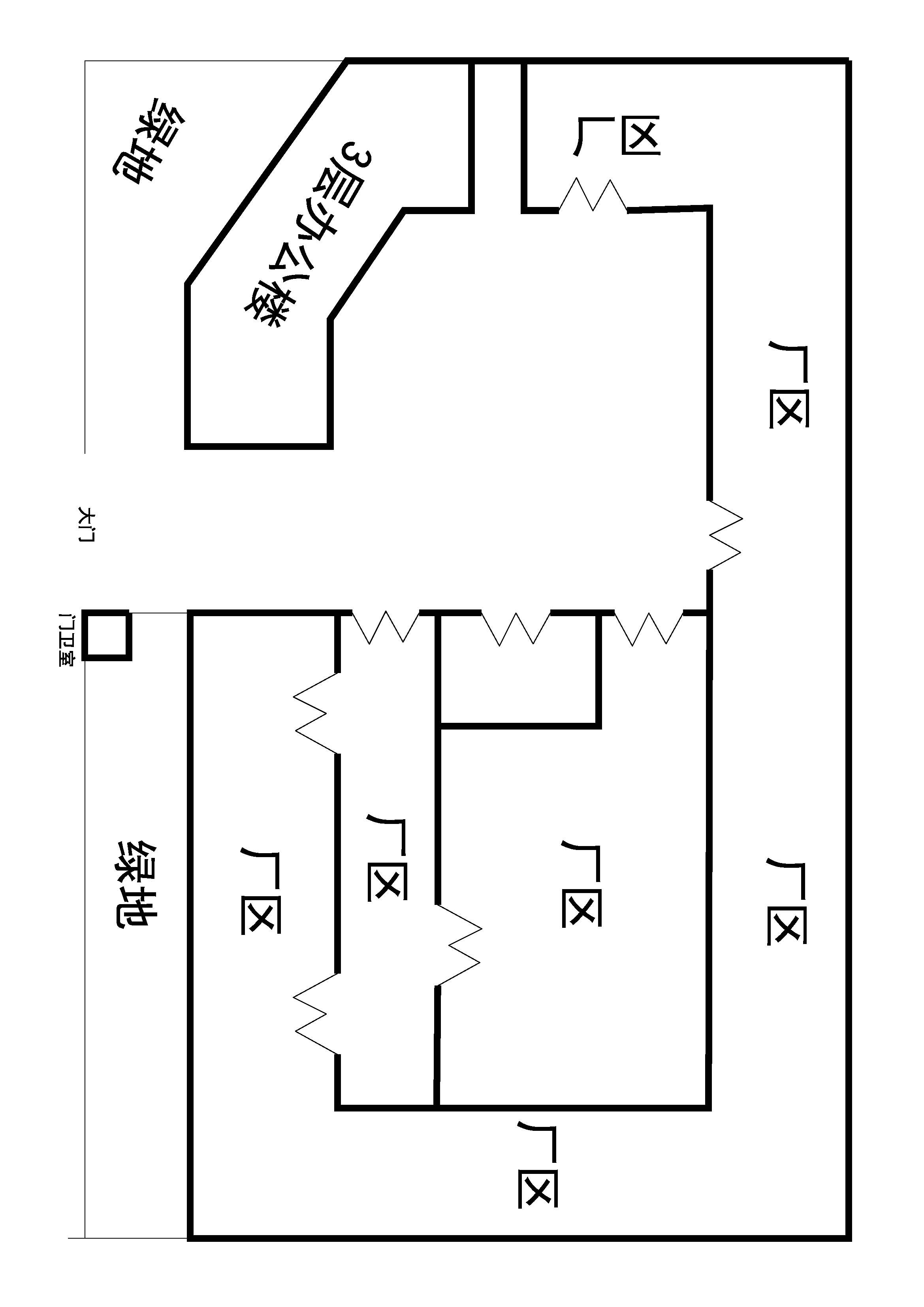
仓库、厂房位于北京大兴区南六环外1公里位置,在工业园内,占地近20亩,建筑面积近10000平方米,独门独院,院中有以独立的3层办公楼,食堂等。有独立的250kva的变压器,库房外檐高度近8米。可以对外整体出租或出售,也可分租(分租面积不小于500平方米以上),此位置适合用于无污染行业的各类库房,加工基地,科研基地、厂房或金属冷加工等,厂区出入方便,紧邻104国道、南六环,欢迎有意者前来洽谈。

图片展示

品牌企业

 地坪类别:环氧自流评.工业地坪,水泥自流评 地下车库地坪.防静电自流评.运动球场聚氨酯砂浆自流评.PVC地板

地坪类别:环氧自流评.工业地坪,水泥自流评 地下车库地坪.防静电自流评.运动球场聚氨酯砂浆自流评.PVC地板

大兴区魏善庄厂库房园区招租(高台库,整租分租均可)

大兴区魏善庄厂库房园区招租(高台库,整租分租均可)

联东U谷-京津冀 厂房、库房、办公-可环评办照出租出售

联东U谷-京津冀 厂房、库房、办公-可环评办照出租出售

荣盛产业新城

荣盛产业新城

“和谷”系列产业园介绍

“和谷”系列产业园介绍

闽京蒲企业园厂房 办公研发楼出租

闽京蒲企业园厂房 办公研发楼出租

昌平沙河厂库房 、办公综合楼出租(可定制分租,面积不限)

昌平沙河厂库房 、办公综合楼出租(可定制分租,面积不限)

相关站点

大兴厂房出租

大兴工厂出租

大兴厂库房出租

大兴库房出租

大兴仓库出租

大兴冷库出租

大兴保鲜库出租

大兴恒温库出租

大兴高台库出租

大兴平库出租

大兴综合楼出租

大兴土地出租

大兴场地出租

大兴建设用地出租

大兴工业用地出租

关于本站- 广告投放- 联系我们- 版权隐私- 免责申明- 意见反馈 返回顶部

版权所有:北京万汇优企科技有限公司 未经授权禁止转载、摘编、复制或建立镜像,如有违反,追究法律责任.

电话:010-56877550

京ICP备14014070号-6