搜房源
发布信息
服务热线:15601084512

客服微信>>

手机站 北京 天津 河北 辽宁 山东 其他站 发布信息

北京厂库房网> 北京库房出租>通州库房出租

通州区富豪工业园区独院仓库出租*

编号:116003

区域:

北京- 通州

类别:

库房出租

占地面积:

3500平米

价格:

面议

建筑面积:

3300平米

库房面积:

3300平米

办公面积:

500平米

柱网跨度:

层高:

4.0米

现配电容量:

分割面积:

地址:

北京市通州区富豪工业园区附近

浏览:

白先生

详细信息

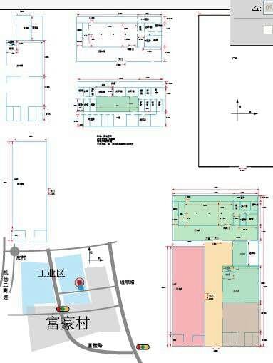
      仓库位于北京市通州区富豪工业园区附近,独立院落,总占地面积3500平米,仓库面积3300平米。其中主库区1700平米,分为上下两层楼房,内部包括办公区和生活住宿区。另外,院内还有库房两处,每处面积800平米左右,都带有办公区域。院内水电齐全,有独立变压器。

      附近交通便利,场地开阔,可以进出大车,出门就是新修建的富壁路,旁边是通顺路,距离五环路5公里,六环路4公里,距离机场二高速5公里,到达首都机场只有12公里的距离。并且附近有924路、通1路和通3路等公交车经过,非常方便。

      仓库大院适合做仓储物流、电商分拣以及货物的存放和中转,出租价格优惠,欢迎有需求的朋友来电洽谈合作!

图片展示

品牌企业

 地坪类别:环氧自流评.工业地坪,水泥自流评 地下车库地坪.防静电自流评.运动球场聚氨酯砂浆自流评.PVC地板

地坪类别:环氧自流评.工业地坪,水泥自流评 地下车库地坪.防静电自流评.运动球场聚氨酯砂浆自流评.PVC地板

大兴区魏善庄厂库房园区招租(高台库,整租分租均可)

大兴区魏善庄厂库房园区招租(高台库,整租分租均可)

联东U谷-京津冀 厂房、库房、办公-可环评办照出租出售

联东U谷-京津冀 厂房、库房、办公-可环评办照出租出售

荣盛产业新城

荣盛产业新城

“和谷”系列产业园介绍

“和谷”系列产业园介绍

闽京蒲企业园厂房 办公研发楼出租

闽京蒲企业园厂房 办公研发楼出租

昌平沙河厂库房 、办公综合楼出租(可定制分租,面积不限)

昌平沙河厂库房 、办公综合楼出租(可定制分租,面积不限)

相关站点

通州厂房出租

通州工厂出租

通州厂库房出租

通州库房出租

通州仓库出租

通州冷库出租

通州保鲜库出租

通州恒温库出租

通州高台库出租

通州平库出租

通州综合楼出租

通州土地出租

通州场地出租

通州建设用地出租

通州工业用地出租

关于本站- 广告投放- 联系我们- 版权隐私- 免责申明- 意见反馈 返回顶部

版权所有:北京万汇优企科技有限公司 未经授权禁止转载、摘编、复制或建立镜像,如有违反,追究法律责任.

电话:010-56877550

京ICP备14014070号-6