搜房源
发布信息
服务热线:15601084512

客服微信>>

手机站 北京 天津 河北 辽宁 山东 其他站 发布信息

北京厂库房网> 北京厂房出售>海淀厂房出售

潍坊市高新区 潍坊(国际)生态科技产业园全新厂房办公楼出售 50年产权

编号:115535

区域:

北京- 海淀

类别:

厂房出售

占地面积:

200000平米

价格:

面议

建筑面积:

3000000平米

车间面积:

2000000平米

办公面积:

100000平米

柱网跨度:

8米

层高:

6.0米

现配电容量:

分割面积:

地址:

潍坊高新区新昌街道健康东街4321号

浏览:

李国良

详细信息

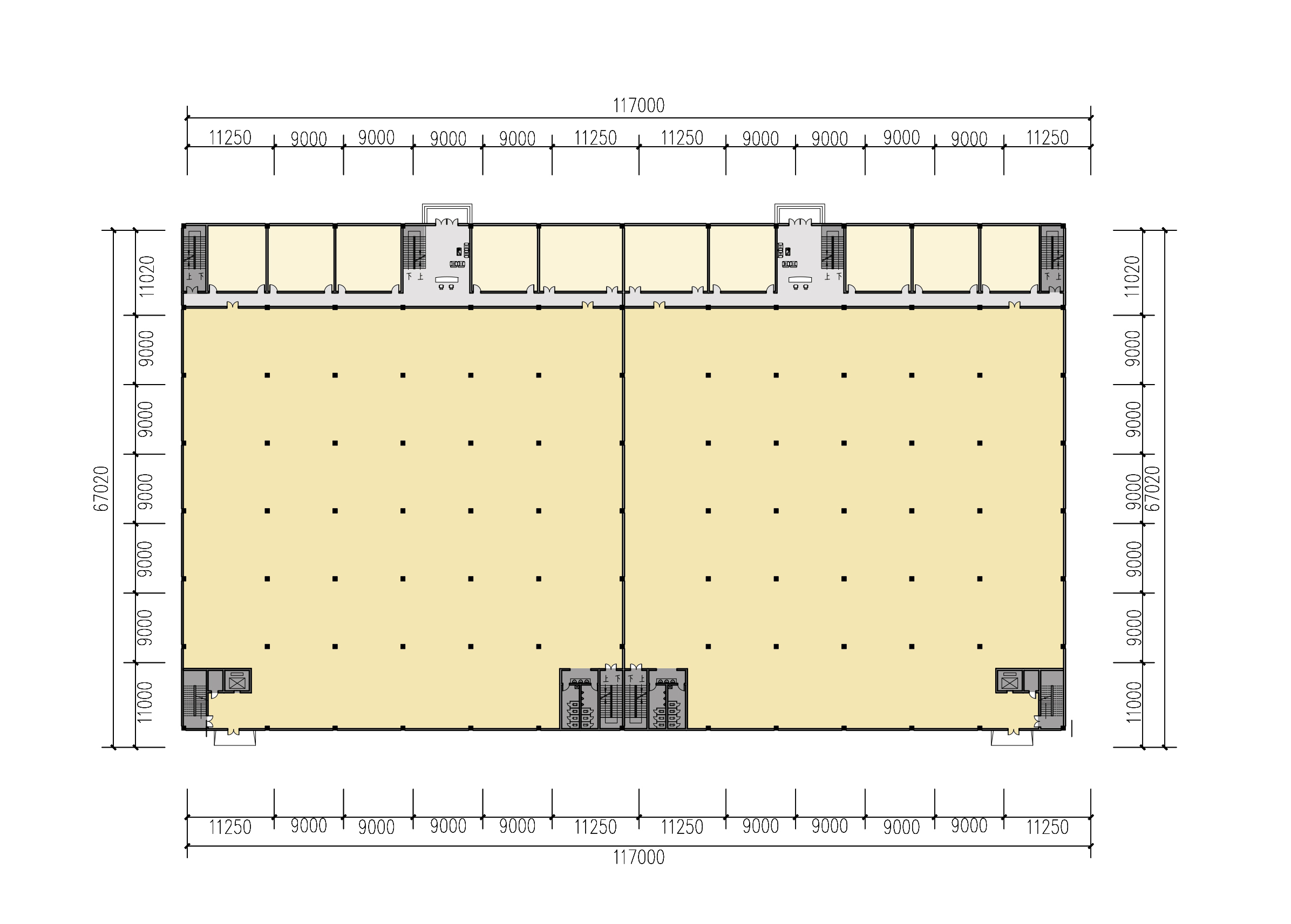
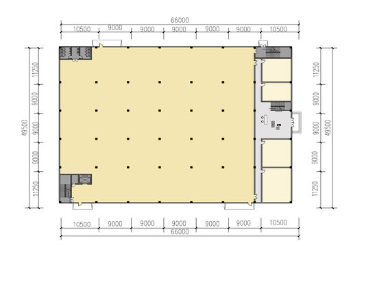
总占地340亩,厂房面积1000−10000平方米都有,高度6米,层数3层,通水通电,临近青银高速,交通便利。
1.标准厂房
2.个性化定制(厂房)
3.一站式服务平台
4.研发中心
5.综合办公双子楼

3500元每平方


潍坊(国际)生态科技产业园

一、园区名称及承办单位

园区名称:潍坊(国际)生态科技产业园

建设运营单位:山东新建总生态科技产业园有限公司

产业规划单位:中智科博(北京)产业经济发展研究院

规划设计单位:启迪设计院

二、园区基本情况

园区借鉴先进园区的经验,创新发展模式,采用政府主导、企业为主体、多元化投资、市场化运作的运营思路,高起点、高标准规划设计的一个高科技产业园区。选址于新昌经济发展区健康东街以北、新昌三街以南、新昌五路以东、西瀑沙河以西340亩工业用地地块内,计划总投资15亿元,建筑面积约30万平方米。

三、园区产业定位与发展目标

以国际化、智慧化、生态化的发展理念,重点引进符合高新区产业发展的国内外先进水平的光电、智能制造、高端环保产业项目、技术、人才和资金,主要建设高标准的企业需求订制厂房、个性化厂房以及研发、孵化、加速为一体的商务办公、商业配套设施,打造新兴高端产业研发、孵化、制造、服务、总部经济和投融资为一体的绿色产业园区,并承接高新区光电园、蓝色智谷(清华启迪孵化器)等园区扩大规模、具备产业化条件的高端光电、智能制造等研发生产项目。

园区投产运营后,将成为全国一流的高端新兴产业示范园区和科技服务产业总部经济基地,年可实现年产值35亿元,利税3亿元,提供就业岗位约8000个。

四、园区建设规模及功能定位

园区规划总建筑面积约30万平方米。其中涵盖标准厂房区、个性化厂房定制专区、VR厂房区、综合办公服务楼、园区配套生活区、独栋研发办公区等功能区。

五、园区发展优势

1、成立产业投资机构、产业基金,对入驻园区企业进行投资;2、利用园区孵化器的优势,对进驻园区潜力型企业,开展多种形式的股权投资;3、发展园区中介、平台机构服务,整合园区及行业资源,向入园企业提供工商注册、融资信贷、法律咨询、人才外包、资质认证、技术中介、管理咨询、知识产权服务。



图片展示

品牌企业

 地坪类别:环氧自流评.工业地坪,水泥自流评 地下车库地坪.防静电自流评.运动球场聚氨酯砂浆自流评.PVC地板

地坪类别:环氧自流评.工业地坪,水泥自流评 地下车库地坪.防静电自流评.运动球场聚氨酯砂浆自流评.PVC地板

大兴区魏善庄厂库房园区招租(高台库,整租分租均可)

大兴区魏善庄厂库房园区招租(高台库,整租分租均可)

联东U谷-京津冀 厂房、库房、办公-可环评办照出租出售

联东U谷-京津冀 厂房、库房、办公-可环评办照出租出售

荣盛产业新城

荣盛产业新城

“和谷”系列产业园介绍

“和谷”系列产业园介绍

闽京蒲企业园厂房 办公研发楼出租

闽京蒲企业园厂房 办公研发楼出租

昌平沙河厂库房 、办公综合楼出租(可定制分租,面积不限)

昌平沙河厂库房 、办公综合楼出租(可定制分租,面积不限)

相关站点

海淀厂房出租

海淀工厂出租

海淀厂库房出租

海淀库房出租

海淀仓库出租

海淀冷库出租

海淀保鲜库出租

海淀恒温库出租

海淀高台库出租

海淀平库出租

海淀综合楼出租

海淀土地出租

海淀场地出租

海淀建设用地出租

海淀工业用地出租

关于本站- 广告投放- 联系我们- 版权隐私- 免责申明- 意见反馈 返回顶部

版权所有:北京万汇优企科技有限公司 未经授权禁止转载、摘编、复制或建立镜像,如有违反,追究法律责任.

电话:010-56877550

京ICP备14014070号-6