北京- 通州
厂房出租
1123平米
面议
1123平米
993平米
130平米
4.8米
70KVA
通州马驹桥联东U谷园
次
详细信息
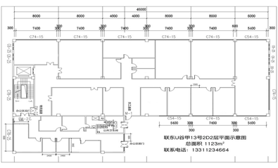
马驹桥联东U谷标准厂房出租
位于;通州马驹桥联东U谷园东区内,交通非常便利、车位充,紧邻高速公路京沪线南六环边“马驹桥”出口附近。所在园区是北京市周边最近的标准工业园区
水电暖齐全。三层的第二层。配备2吨货梯。带380V动力电,配电为70千伏安。总面积1123㎡。车间面积993平米 内设130㎡办公面积,为中高档装修。
价格面议...有意者来电...

图片展示
版权所有:北京万汇优企科技有限公司 未经授权禁止转载、摘编、复制或建立镜像,如有违反,追究法律责任.
电话:010-56877550